Città
- Bagnolo Cremasco 2
- Bonemerse 1
- Casalmaggiore 1
- Castelleone 2
- Castelverde 3
- Chieve 6
- Cicognolo 1
- Crema 48
- Cremona 50
- Gadesco Pieve Delmona 1
- Grumello Cremonese Ed Uniti 1
- Montodine 1
- Ostiano 1
- Persico Dosimo 2
- Rivarolo Del Re Ed Uniti 2
- Rivolta D'adda 1
- Robecco D'oglio 1
- Sergnano 2
- Sesto Ed Uniti 2
- » Soresina
- Stagno Lombardo 1
- Vescovato 1
4 Risultati per
Appartamenti in vendita Soresina - CR
Ordina per:
€ 33.750
Soresina (CR)
Locali
3
Superficie
89 mq
Bagni
1
Contratto
Vendita
Vendita appartamento in buone condizioni via matteotti 35/e 35/g a soresina (cr) 89 mq
APPARTAMENTO ALL'ASTA IN VIA MATTEOTTI, SORESINA (CR)
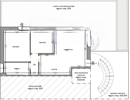
Si propone il diritto di piena proprietà di un'unità immobiliare ad uso residenziale sita in Via Matteotti n 35/E 35/G, nel comune di Soresian (CR). Nello specifico si tratta di un trilocale, sito al secondo piano, composto così:
ingresso/soggiorno con angolo cottura,
corridoio disimpegno,
due camere da letto
bagno,
due piccoli balconi
Piano Interrato:
autorimessa
L'appartamento ha una superficie commerciale di mq 89.
DATI CATASTALI:
Foglio 18, particella 828, sub 506, cat A/3, classe 4 cons. 3.5 vani, rendita € 207,87 posta al secondo piano;
Foglio 18, sub 508, cat C/6, classe 5, rendita € 25,31 al piano interrato.
CHI SIAMO
Immobiliallasta.it aiuta le persone a comprare casa all’asta e migliorare la qualità della loro vita senza correre rischi, grazie ad una piattaforma specializzata in aste immobiliari sviluppata intorno alle vere esigenze di chi cerca casa all’asta e ad un team di 30 professionisti esperti dedicato, che ti guida passo passo in un acquisto sicuro e certificato da una tripla garanzia sull’immobile e sul servizio.
A differenza delle agenzie troverai:
+ Varietà: gestiamo migliaia di immobili ogni mese
+ Tranquillità: tripla garanzia che ti tutela da ogni rischio sull’acquisto
Alcuni risultati oggettivi nell’ultimo anno e mezzo:
8.600 immobili gestiti
+500 clienti portati all’asta
+200 case aggiudicate, per un valore totale di 15 milioni
Contattaci subito per parlare con uno dei nostri consulenti che ti aiuterà a trovare la tua casa all’asta senza correre rischi. annuncio pubblicato con GESTIONALEIMMOBILIARE.it
€ 10.094
Borgo San Giacomo (BS)
Locali
5
Superficie
145 mq
Bagni
1
Contratto
Vendita
Vendita appartamento in buone condizioni via sp 65 (già via castello) 9/a - 25022 borgo san giacomo (bs) a borgo san giacomo (bs) 145 mq
APPARTAMENTO ALL'ASTA A BORGO SAN GIACOMO (BS)
Una bellissima opportunità di investimento si presenta con la vendita all'asta di un appartamento in una zona prestigiosa di Borgo San Giacomo (BS), con un'offerta minima di 10093.95 €. Approfitta di questa occasione unica per acquisire una proprietà di pregio tramite un'asta presso il Tribunale di Brescia. Per ulteriori dettagli, contatta immobiliallasta.it, esperti in aste e leader nel settore in Italia.
CHI SIAMO
Immobiliallasta.it aiuta le persone a comprare casa all’asta e migliorare la qualità della loro vita senza correre rischi, grazie ad una piattaforma specializzata in aste immobiliari sviluppata intorno alle vere esigenze di chi cerca casa all’asta e ad un team di 30 professionisti esperti dedicato, che ti guida passo passo in un acquisto sicuro e certificato da una tripla garanzia sull’immobile e sul servizio.
A differenza delle agenzie troverai:
+ Varietà: gestiamo migliaia di immobili ogni mese
+ Tranquillità: controlli certificati che ti tutelano nell'acquisto
Alcuni risultati oggettivi nell’ultimo anno e mezzo:
8.600 immobili gestiti
+500 clienti portati all’asta
+200 case aggiudicate, per un valore totale di 15 milioni
Contattaci subito per parlare con uno dei nostri consulenti che ti aiuterà a trovare la tua casa all’asta senza correre rischi. annuncio pubblicato con GESTIONALEIMMOBILIARE.it
€ 119.000
Castelleone (CR)
Superficie
115 mq
Bagni
1
Contratto
Vendita
Appartamento - trilocale a castelleone
CASTELLEONE Ampio trilocale in pieno centro
Nella centralissima Piazza Vittoria, appartamento di circa 115 mq posto al primo ed ultimo piano e così composto: atrio d'ingresso, soggiorno, cucina abitabile, disimpegno, due camere matrimoniali e bagno. La proprietà include anche una cantina al piano terra.
L'immobile è in buone condizione generali e già abitabile, la ristrutturazione interna risale al 1995.
Gli ambienti sono molto ampi, ariosi con soffitti alti.
Posizione servitissima.
Alcuni dati descrittivi dell'immobile potrebbero essere solo approssimativi (es: spese di riscaldamento, spese condominiali e divisione superfici) e pertanto verranno forniti in modo completo solo telefonicamente oppure in fase di appuntamento.
SI PRECISA che l'indirizzo pubblicato INDICA SOLO LA ZONA E/O LA DIREZIONE di ubicazione dell'immobile. Dettagli più precisi verranno forniti solo con contatto telefonico.
VENITE A CONOSCERCI DI PERSONA, ci trovate a Crema in Viale De Gasperi n. 25.
€ 99.000
Castelleone (CR)
Superficie
115 mq
Bagni
1
Contratto
Vendita
Appartamento - trilocale a castelleone
CASTELLEONE Ampio trilocale in pieno centro
Nella centralissima Piazza Vittoria, appartamento di circa 115 mq posto al primo ed ultimo piano e così composto: atrio d'ingresso, soggiorno, cucina abitabile, disimpegno, due camere matrimoniali e bagno. La proprietà include anche una cantina al piano terra.
L'immobile è in buone condizione generali e già abitabile, la ristrutturazione interna risale al 1995.
Gli ambienti sono molto ampi, ariosi con soffitti alti.
Posizione servitissima.
N.b. Attualmente l'immobile è arredato, le immagine pubblicate raffiguranti le stanze vuote sono state generate con intelligenza artificiale.
Alcuni dati descrittivi dell'immobile potrebbero essere solo approssimativi (es: spese di riscaldamento, spese condominiali e divisione superfici) e pertanto verranno forniti in modo completo solo telefonicamente oppure in fase di appuntamento.
SI PRECISA che l'indirizzo pubblicato INDICA SOLO LA ZONA E/O LA DIREZIONE di ubicazione dell'immobile. Dettagli più precisi verranno forniti solo con contatto telefonico.
VENITE A CONOSCERCI DI PERSONA, ci trovate a Crema in Viale De Gasperi n. 25.
Trovati 4 elementi | Pagina 1 di 1