Città
- Campagna Lupia 1
- Campolongo Maggiore 1
- Camponogara 3
- Cavarzere 6
- Chioggia 1
- Cona 1
- Fiesso D'artico 1
- Fossò 10
- Jesolo 1
- Marcon 7
- Martellago 3
- Mirano 3
- Noale 3
- Pianiga 6
- Portogruaro 2
- San Donà Di Piave 1
- Scorzè 2
- » Spinea
- Stra 3
- Venezia 26
4 Risultati per
Uffici in vendita Spinea - VE
Ordina per:
€ 78.000
Spinea (VE)
Superficie
80 mq
Bagni
1
Contratto
Vendita
Vendita ufficio nuova costruzione via alfieri, 1a zona spinea - centro a spinea (ve) 80 mq
UFFICIO 80 MQ – SPINEA CENTRO – € 78.000
In pieno centro a Spinea, proponiamo ufficio di 80 mq inserito in elegante fabbricato direzionale, completamente ristrutturato nel 2006, con vano scala in vetro di forte impatto estetico.
L’ufficio, posto al piano secondo, si presenta in condizioni impeccabili, pronto all’uso, con impianti perfettamente funzionanti e finiture moderne e di livello, sia negli spazi comuni che all’interno dell’unità.
Soluzione ideale per studi professionali o investimento di qualità.
Prezzo: € 78.000 annuncio pubblicato con GESTIONALEIMMOBILIARE.it
€ 78.000
Spinea (VE)
Locali
1
Superficie
80 mq
Bagni
2
Contratto
Vendita
Vendita ufficio nuova costruzione spinea zona spinea - centro a spinea (ve) 80 mq
Spinea: via Alfieri, in posizione centrale e comoda alle principali via di comunicazione, proponiamo in vendita ufficio di circa 70 mq. calpestabili, al piano primo, servito da ascensore, in elegante contesto condominiale ristrutturato nel 2006, composto da un ambiente principale luminoso, archivio, antibagno e doppi servizi.
La pavimentazione è interamente in gres.
I serramenti interni sono in alluminio con vetrocamera, dotati di veneziane frangisole a pacchetto.
Presente un impianto di riscaldamento/raffrescamento centralizzato di tipo canalizzato.
Impianto elettrico funzionante, con rete LAN cablata.
Ideale per studi professionali.
Ulteriori informazioni in agenzia. annuncio pubblicato con GESTIONALEIMMOBILIARE.it
€ 117.000
Spinea (VE)
Superficie
140 mq
Contratto
Vendita
Vendita ufficio nuova costruzione via vittorio alfieri, 1a zona spinea - centro a spinea (ve) 140 mq
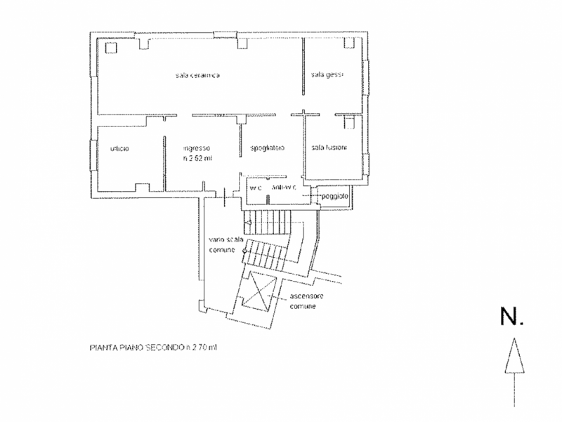
Ufficio ristrutturato – Zona centrale di primario interesse – Spinea – € 117.000,00
In zona centrale e di primario interesse a Spinea, proponiamo ufficio recentemente ristrutturato, situato al piano secondo, ideale per studi professionali, società di servizi o uffici direzionali.
L’immobile si sviluppa su una superficie complessiva di circa 140 mq, caratterizzata da ampie vetrate che garantiscono eccellente luminosità.
Distribuzione interna:
5 stanze ideali per uffici operativi e postazioni di lavoro
Ampia sala di circa 70 mq, perfetta come sala riunioni, sala corsi o open space direzionale
Ingresso dedicato per reception
Servizio igienico
Caratteristiche principali: Ristrutturazione recente, Ottime condizioni generali, Ambienti moderni e funzionali, Pronto da subito, Posizione centrale e strategica, Soluzione ideale per chi cerca un ufficio rappresentativo, in una delle zone più richieste di Spinea.
Prezzo richiesto: € 117.000,00 annuncio pubblicato con GESTIONALEIMMOBILIARE.it
€ 117.000
Spinea (VE)
Locali
5
Superficie
140 mq
Bagni
1
Contratto
Vendita
Vendita ufficio in buone condizioni spinea zona spinea - centro a spinea (ve) 140 mq
Spinea: via Alfieri, in posizione centrale e comoda alle principali via di comunicazione, proponiamo in vendita ufficio di circa 110 mq. calpestabili, al piano secondo, servito da ascensore, in elegante contesto condominiale ristrutturato nel 2006, composto da ingresso dedicato per reception, ampia sala (perfetta come sala riunioni, sala corsi o open space direzionale), quattro stanze uso ufficio/postazioni di lavoro e servizio igienico con antibagno e poggiolo.
La pavimentazione è interamente in gres.
I serramenti interni sono in pvc con vetrocamera, tapparelle esterne anch'esse in pvc; portoncino di ingresso blindato.
Presente un impianto di riscaldamento/raffrescamento centralizzato con ventilconvettori.
Completa la proprietà un ripostiglio all'ottavo piano.
Ideale per studi professionali, società di servizi o uffici direzionali.
Ulteriori informazioni in agenzia. annuncio pubblicato con GESTIONALEIMMOBILIARE.it
Trovati 4 elementi | Pagina 1 di 1